Paddy’s River

Paddy’s River

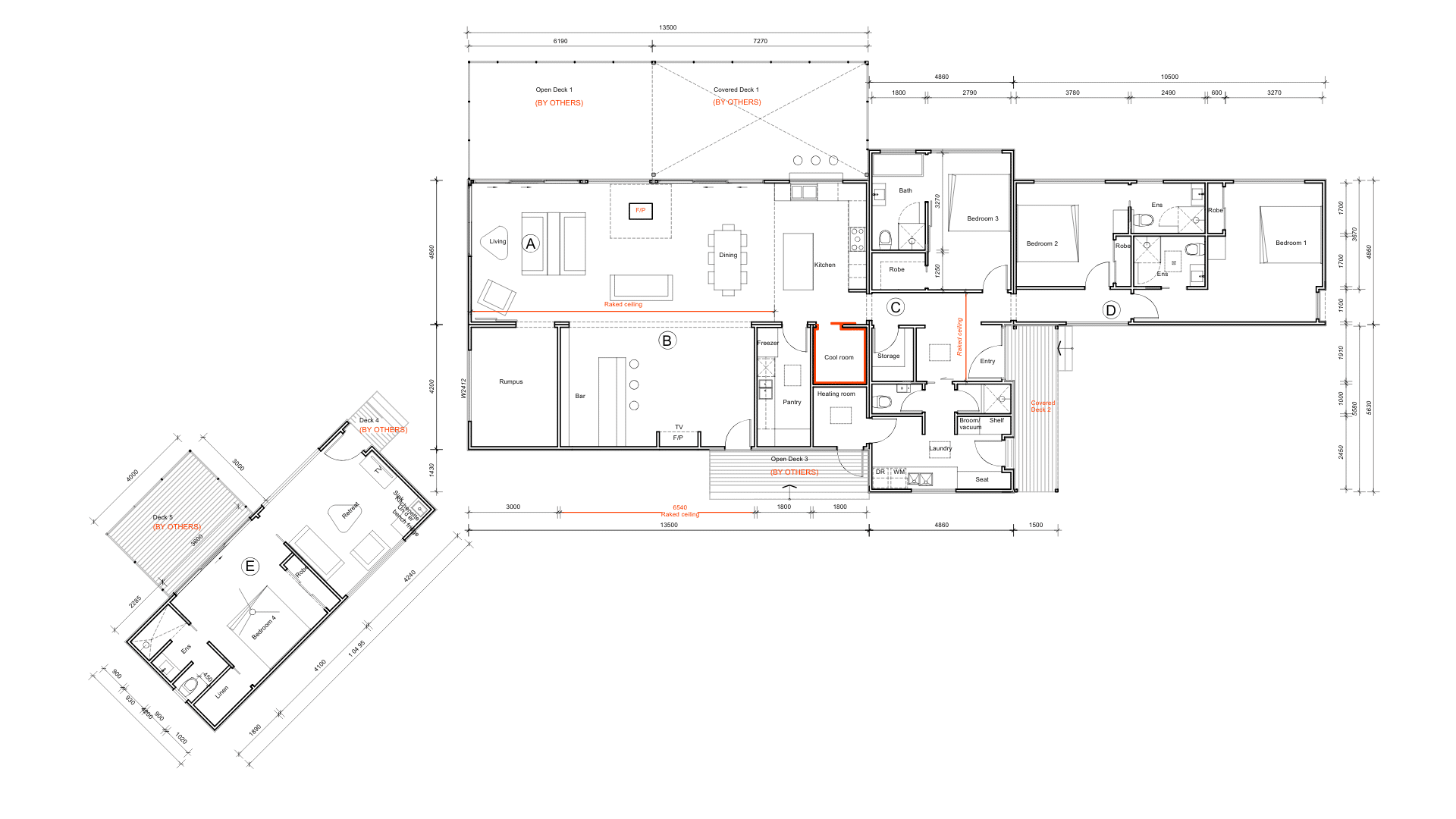
Bedrooms 4
Bathrooms 5
Living Spaces 4
Modules 5
Starting From Built to your specifications

A thoughtfully designed custom home that balances spacious open-plan living with clearly defined zones for privacy and functionality. The central kitchen, dining, and living area with raked ceilings forms the heart of the home, complemented by a separate rumpus for added flexibility. Bedrooms are positioned in a dedicated wing, creating a quiet retreat away from the main living spaces. A functional service core including pantry, laundry, and storage connects the home seamlessly, while the optional detached pod provides additional space for guests, work, or relaxation. Designed for modern living, this home offers both comfort and versatility.

 

Paddy’s River

Beautiful by design, clever by construction, delivered faster than you’d expect. And yes, we do it fabulously.

Prefabulous spaces are designed to turn heads and make sense. From homes and accommodation to tourism projects, offices, and commercial spaces, every project starts with strong architecture that looks beautiful and works effortlessly in the real world.

Built in a controlled environment in our Wagga Wagga yard, our modular approach delivers higher quality, less waste, and far more certainty than a traditional build. With design and construction handled together, the process is simple and refreshingly fuss free. The result is a thoughtfully designed space delivered faster, built to perform in regional conditions, and ready to enjoy sooner. 

Prefabulous is licensed for NSW only, therefore only deliver to NSW

Strikingly architectural, devastatingly good-looking, thoroughly finished, sustainably considered, and ready before you know it.

We’ll help you choose the design best suited to your site, orientation, natural surrounds and lifestyle needs. Then we’ll work with our architect to flip, mirror reverse and tweak our plans, and add or subtract features to ensure the design is exactly right for you.

Browse Our Other Residential Plans

Explore our full range of architect-designed residential plans, each crafted for style, functionality, and sustainable living.

Ready to get started?

Download our brochure and explore architecturally designed modular homes that are anything but ordinary. From rural retreats to coastal cool, we design, build and deliver across NSW. Your fabulously modern space starts here.

Ready to get started?

Download our sales and processes brochure and take your next step.