Wattle

Wattle

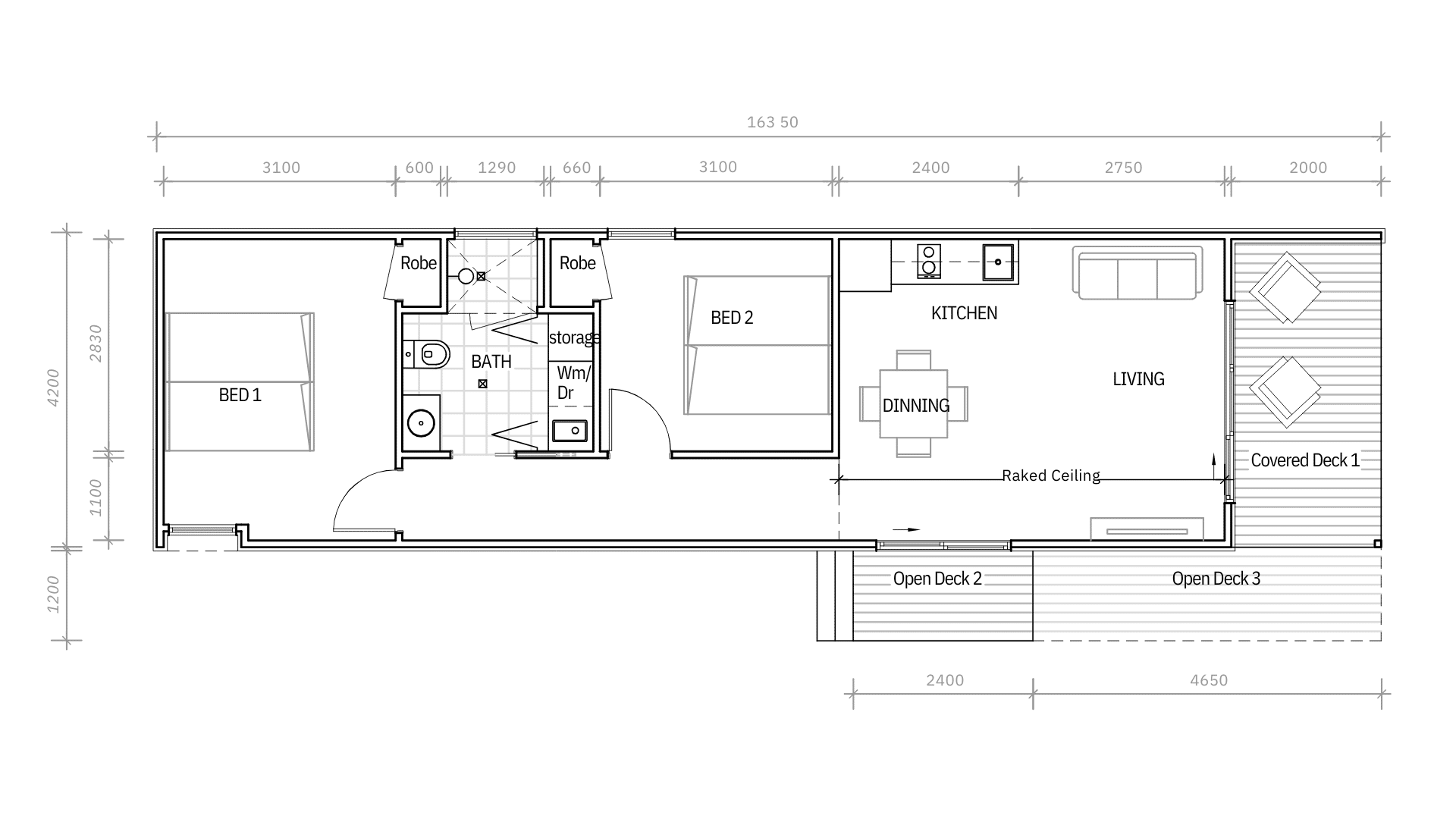
Bedrooms 2
Bathrooms 1
Living Spaces 1
Modules 1
Living Area 65.5 m²
Length 16.2 m
Width 4.2 m
Starting From $280,000 incl. GST

A well-designed two bedroom home that maximises space through a simple and efficient layout. The open-plan kitchen, dining, and living area with raked ceiling creates a light-filled central hub, flowing directly to outdoor deck areas for easy indoor-outdoor living. Both bedrooms are positioned for privacy, with a central bathroom and integrated laundry for convenience. Compact yet functional, this design is ideal for downsizers, first home buyers, or investment opportunities.

Wattle

Beautiful by design, clever by construction, delivered faster than you’d expect. And yes, we do it fabulously.

Prefabulous spaces are designed to turn heads and make sense. From homes and accommodation to tourism projects, offices, and commercial spaces, every project starts with strong architecture that looks beautiful and works effortlessly in the real world.

Built in a controlled environment in our Wagga Wagga yard, our modular approach delivers higher quality, less waste, and far more certainty than a traditional build. With design and construction handled together, the process is simple and refreshingly fuss free. The result is a thoughtfully designed space delivered faster, built to perform in regional conditions, and ready to enjoy sooner. 

Prefabulous is licensed for NSW only, therefore only deliver to NSW

Strikingly architectural, devastatingly good-looking, thoroughly finished, sustainably considered, and ready before you know it.

We’ll help you choose the design best suited to your site, orientation, natural surrounds and lifestyle needs. Then we’ll work with our architect to flip, mirror reverse and tweak our plans, and add or subtract features to ensure the design is exactly right for you.

Browse Our Other Residential Plans

Explore our full range of architect-designed residential plans, each crafted for style, functionality, and sustainable living.

Ready to get started?

Download our brochure and explore architecturally designed modular homes that are anything but ordinary. From rural retreats to coastal cool, we design, build and deliver across NSW. Your fabulously modern space starts here.

Ready to get started?

Download our sales and processes brochure and take your next step.