Wanderer

Wanderer

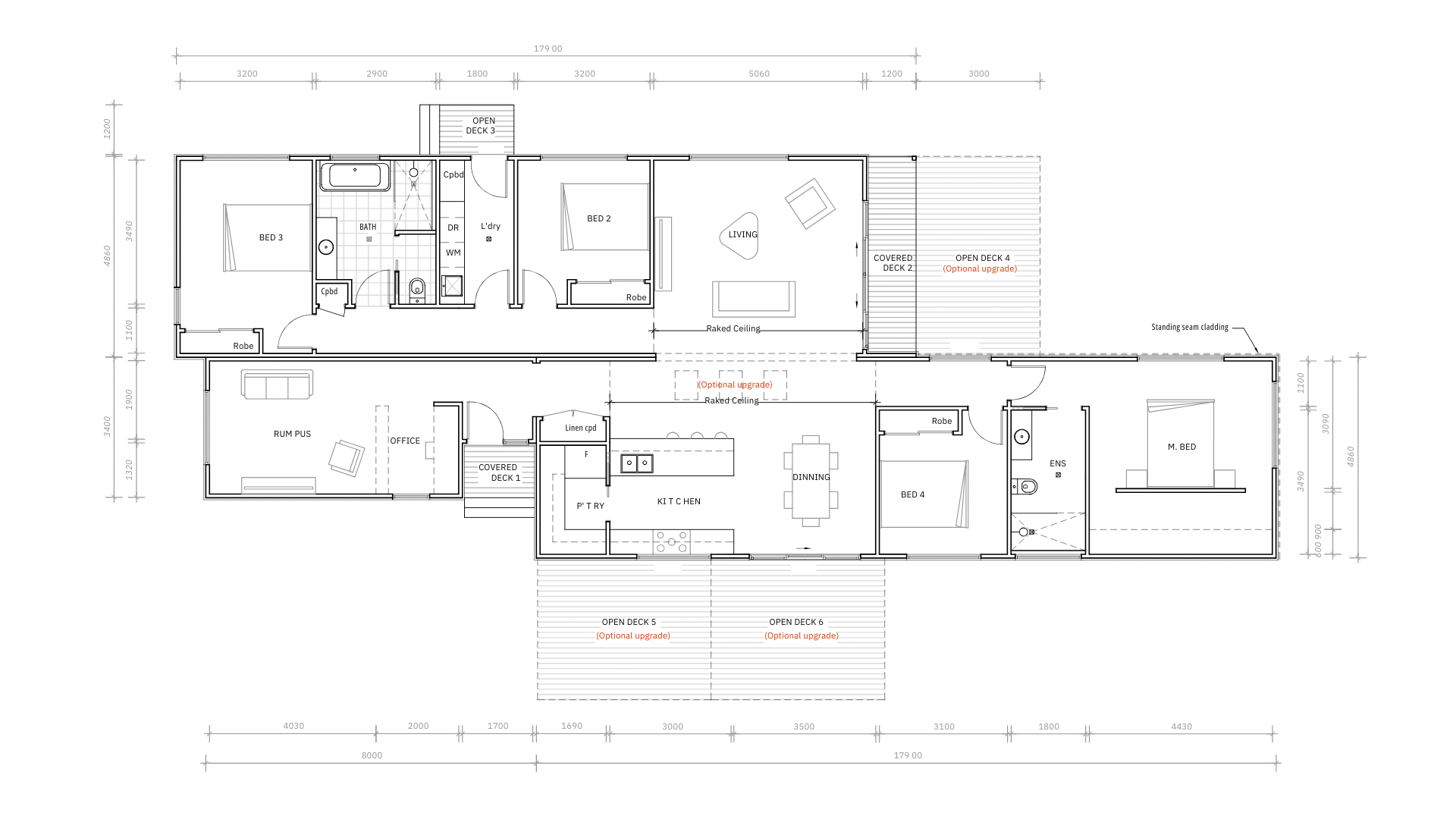
Bedrooms 4
Bathrooms 2
Living Spaces 2
Modules 3
Living Area 193 m²
Length 17 m
Width 4.86 m
Starting From $670,000 incl. GST

A spacious and flexible family home designed to accommodate both everyday living and entertaining. The central kitchen, dining, and living area with raked ceilings forms the heart of the home, opening to multiple outdoor deck areas. A separate rumpus and office provide additional living zones, ideal for growing families or working from home. Bedrooms are thoughtfully arranged, with a private master suite positioned in its own wing complete with ensuite. With its multi-zone layout and generous proportions, this home offers comfort, functionality, and flexibility.

Wanderer

Beautiful by design, clever by construction, delivered faster than you’d expect. And yes, we do it fabulously.

Prefabulous spaces are designed to turn heads and make sense. From homes and accommodation to tourism projects, offices, and commercial spaces, every project starts with strong architecture that looks beautiful and works effortlessly in the real world.

Built in a controlled environment in our Wagga Wagga yard, our modular approach delivers higher quality, less waste, and far more certainty than a traditional build. With design and construction handled together, the process is simple and refreshingly fuss free. The result is a thoughtfully designed space delivered faster, built to perform in regional conditions, and ready to enjoy sooner. 

Prefabulous is licensed for NSW only, therefore only deliver to NSW

Strikingly architectural, devastatingly good-looking, thoroughly finished, sustainably considered, and ready before you know it.

We’ll help you choose the design best suited to your site, orientation, natural surrounds and lifestyle needs. Then we’ll work with our architect to flip, mirror reverse and tweak our plans, and add or subtract features to ensure the design is exactly right for you.

Browse Our Other Residential Plans

Explore our full range of architect-designed residential plans, each crafted for style, functionality, and sustainable living.

Ready to get started?

Download our brochure and explore architecturally designed modular homes that are anything but ordinary. From rural retreats to coastal cool, we design, build and deliver across NSW. Your fabulously modern space starts here.

Ready to get started?

Download our sales and processes brochure and take your next step.